Select your region :
Canada
USA

Industrial

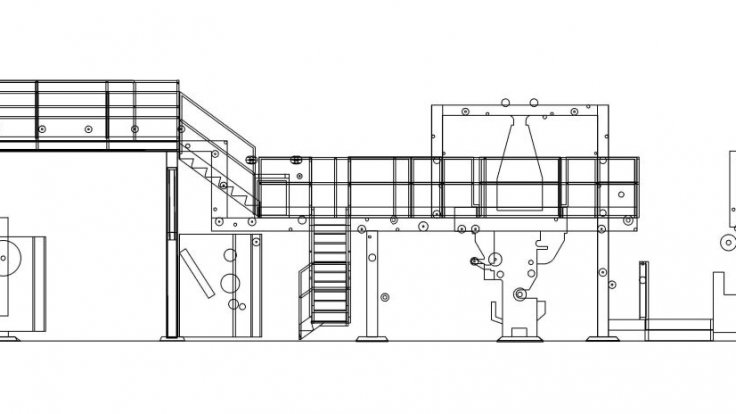
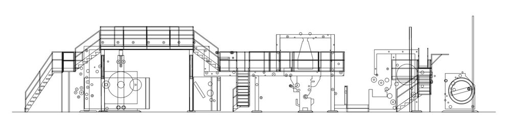
3D scan, 3D modeling and drawings for validation of a machine

Description

Our client needed up-to-date drawings of an existing machine to validatethe installation and replacement of equipments.